ALCANTARA 751

¿QUIERES VIVIR FRENTE AL COLEGIO?

Te invito a conocer un proyecto de 4 casas en Alcantara 751

  • Ubicación ideal, a pasos del Verbo Divino y del Villa María.

  • Beneficio de anticiparse: invierte en una casa que valdrá más.

    Ganas tiempo, calidad de vida y valor de inversión.

  • Casas amplias y luminosas, diseñadas para vivir en confort.

    Con un subterráneo privado y patios independientes.

Ubicado en la calle Alcantara 751 entre la calle Navarra y León.

Condominio Tipo B

Acogido a la Ley de Copropiedad Inmobiliaria.

Artículo 6.1.8. aumento de densidad O.G.U.C.

Terreno de 856m²

De 18m de frente por la calle Alcantara y 48,55m de profundidad.

Con orientación continua y despejada al Norte.

La pendiente del terreno baja hacia el interior del terreno, con una diferencia de altura de 1,60m

4 casas orientadas al Norte, con 10 metros de frente.

Con 40cm de diferencia de altura entre ellas, siguiendo el terreno natural y dandole un grado de independecia entre las unidades.

PROGRAMA

  • 4 casas de 140 m² + 20 m de superficie habilitada.

  • Patios privados de 58 a 81 m²

  • Acceso directo desde el subterráneo.

  • 2 estacionamientos y 1 bodega en subterráneo.

Corte Transversal

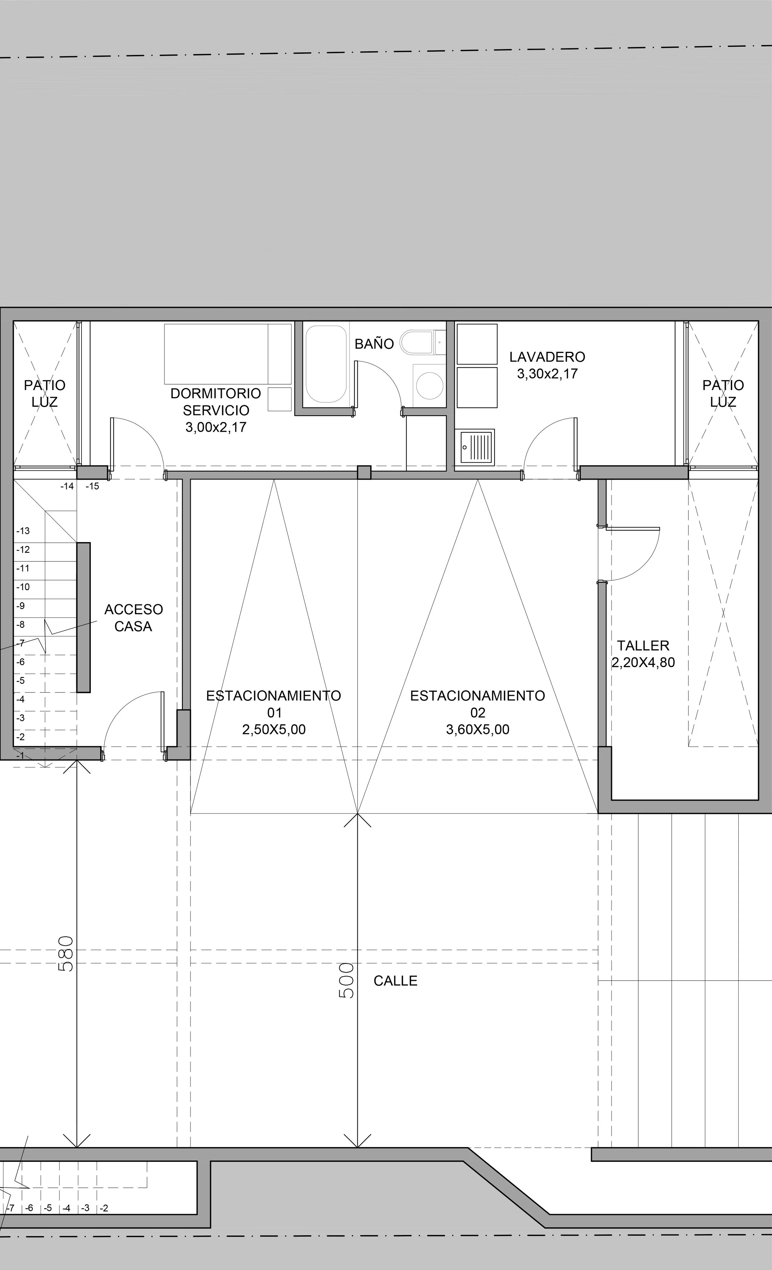
CASA 1

CASA 1

LIVING + COMEDOR + COCINA

3 DORMITORIOS + 3 BAÑOS + ESCRITORIO

2 ESTACIONAMIENTOS + TALLER

Superficie Interior 140m²

Superficie Habilitada 23,5m²

Patio Privado. 70m²

Taller 13m²

SUPERFICIE TOTAL. 246,5m²

Piso 1

Piso 2

Subterráneo

Patio Interior

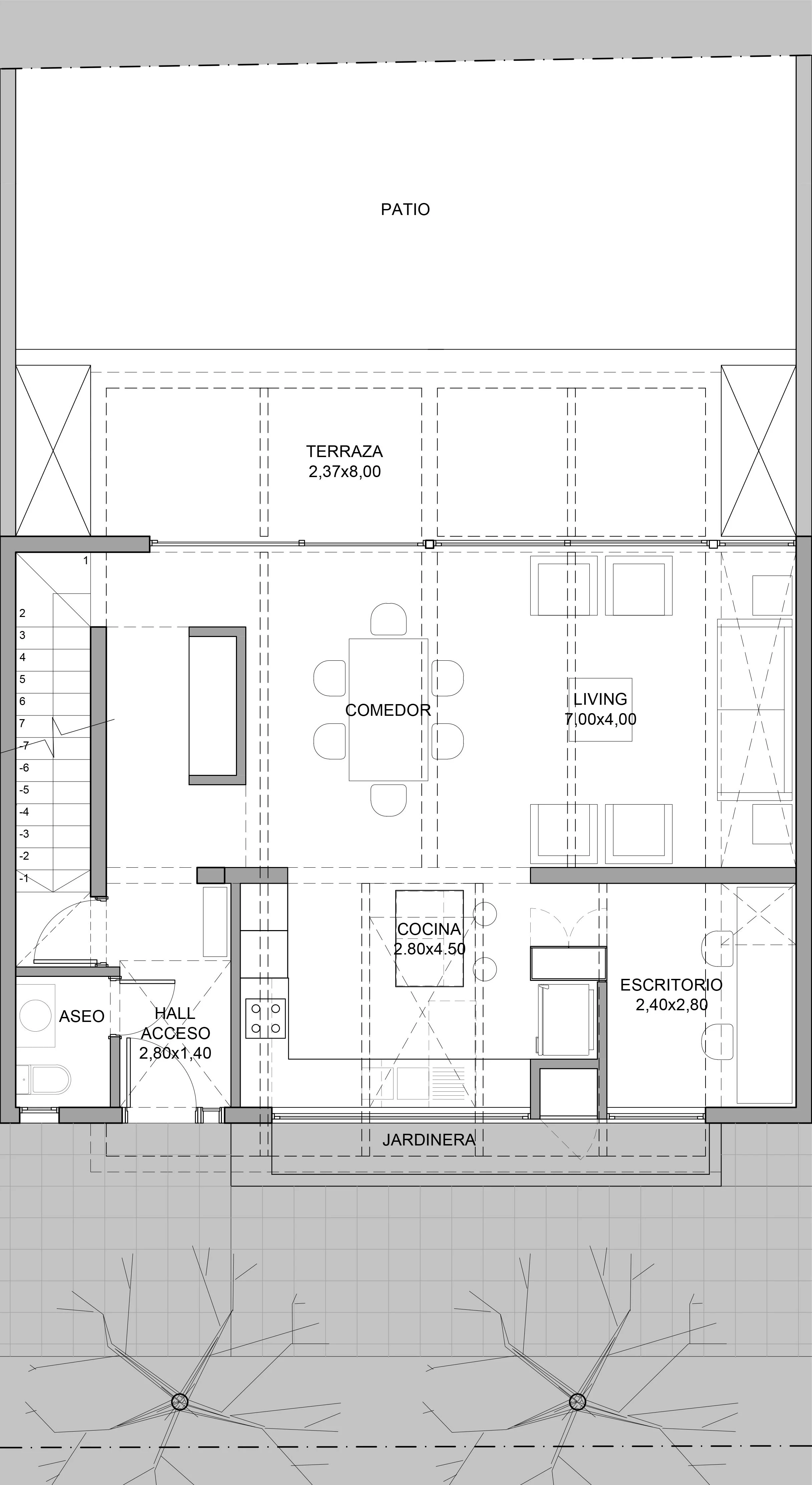
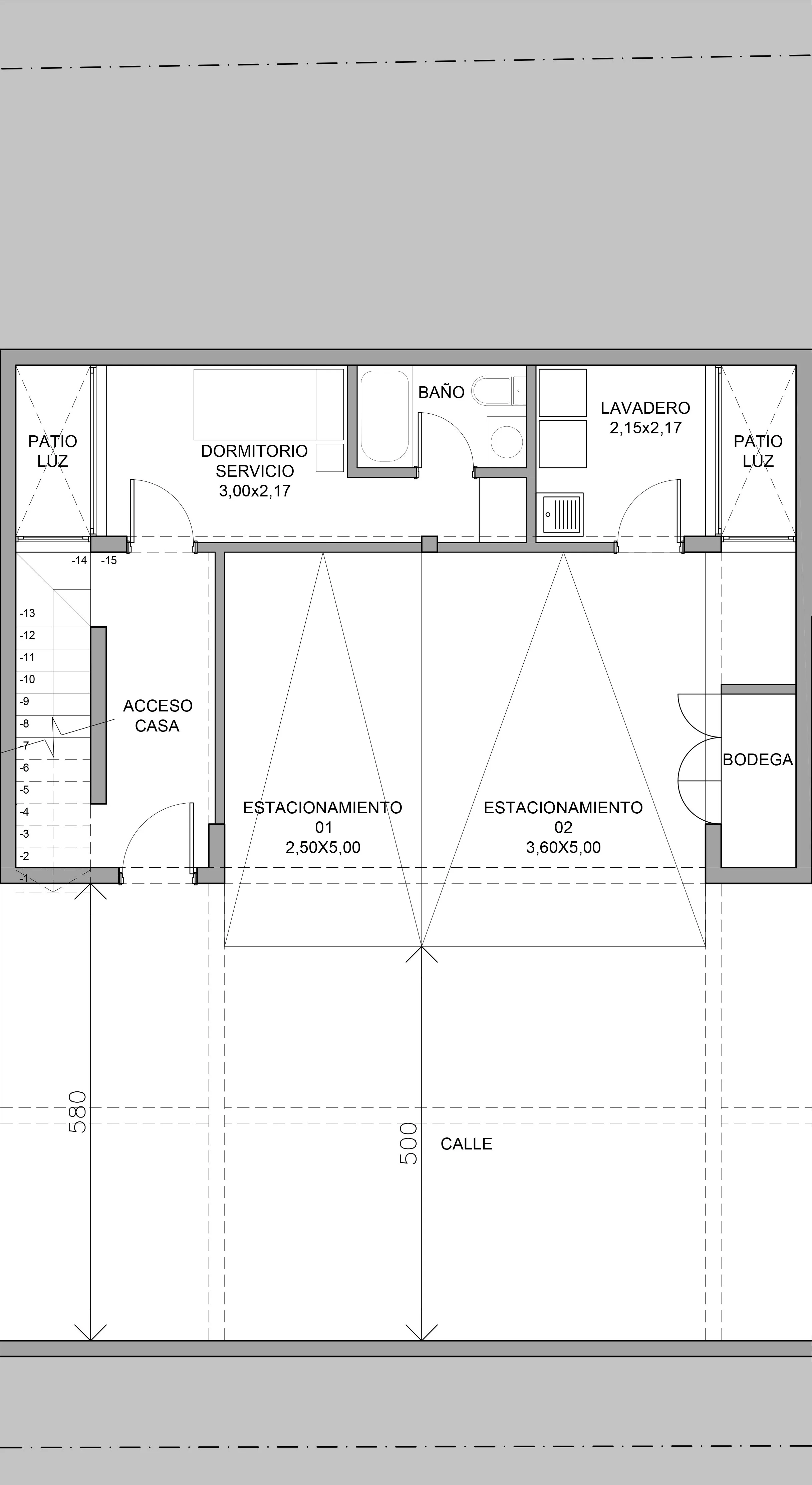
CASA 2 o 3

CASA 2 o 3

LIVING + COMEDOR + COCINA

3 DORMITORIOS + 3 BAÑOS + ESCRITORIO

2 ESTACIONAMIENTOS + BODEGA

Superficie Interior 140m²

Superficie Habilitada 20m²

Patio Privado. 58 - 60m²

SUPERFICIE TOTAL. 220m²

Piso 1

Piso 2

Subterráneo

Living- Comedor

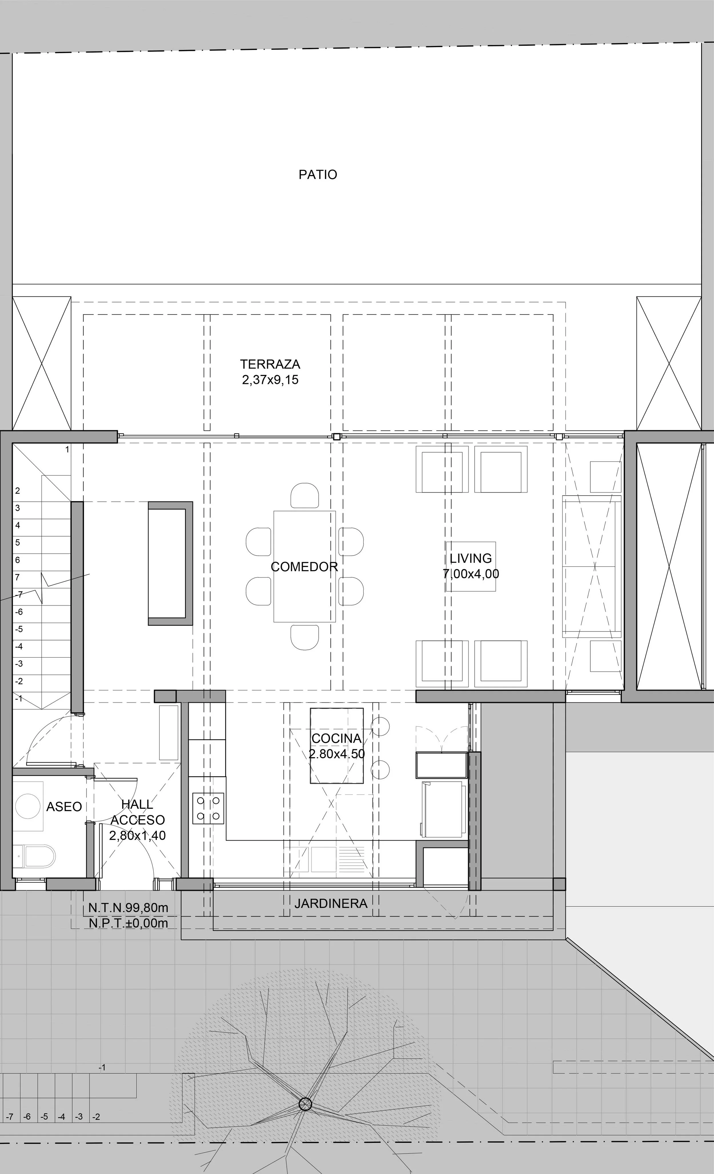
CASA 4

CASA 4

LIVING + COMEDOR + COCINA

3 DORMITORIOS + 3 BAÑOS + ESCRITORIO

2 ESTACIONAMIENTOS + BODEGA

Superficie Interior 140m²

Superficie Habilitada 20m²

Patio Privado. 81m²

SUPERFICIE TOTAL. 241m²

Piso 1

Piso 2

Subterráneo

Acceso peatonal.

Para más información contactar

Celular: +56 9 6495 6030

mail: contacto@juanpablo-calderon.com

Proyecto desarrollado por Juan Pablo Calderón, arquitecto, fotógrafo y apoderado del colegio Verbo Divino.